Mi experiencia con arquitectos pro ha sido de excelencia, dominan todos los temas relacionados con la construcción, realizan planos estructurales, eléctricos, brindan confianza, y escuchan a sus clientes, generan ideas, demuestran preocupación activa, recomiendan mejorías, se adelantan a problemas emergentes, y conocen las leyes. Realmente he tenido una muy buena experiencia.
Ada
hace 2 años
Son profesionales competentes e idóneo con su causa
Marion Monsalve
hace 3 años
Excelente trabajo, seriedad, puntualidad y compromiso. Felicitaciones
Vladimir Zelada Del Canto
hace 3 años
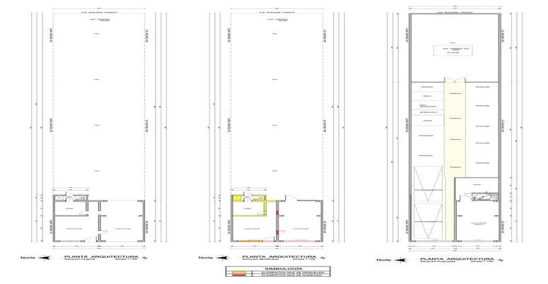
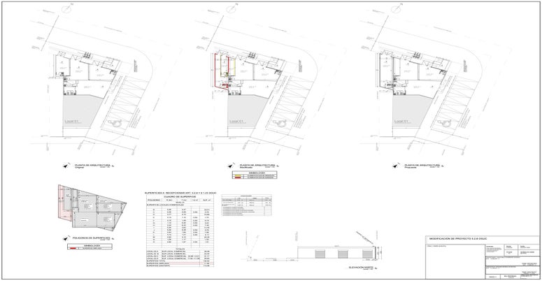
Les solicité regularización por ley del mono, realizando todos los trámites en forma expedita y obteniendo la recepción Municipal en los plazos qué correspondía. Muy conforme con su trabajo y asesoramiento.
Sergio Valenzuela
hace 3 años
Excelentes profesionales y consejeros que apoyan al cliente en todos los aspectos legales referentes a la regularización de las obras y/o construcciones.
Cumplen a cabalidad con los plazos y asesoría que ofrecen y mantienen constantemente informado de los procesos que va el tramite.
Muy recomendables !!
Eugenio Rivera ( calculista)
hace 3 años
Es un trabajo profesional, saben de los temas relacionados a la tramitación municipal, conocimiento de ordenanzas municipales , de la ley general de urbanismo y construcción. y basto conocimiento de construcción.
marcelino Lavín
hace 3 años
Nosotros quedamos muy conforme con la gestión de regularizar en la parcela nuestra vivienda, gracias 👌😁
Añadir comentario
Comentarios
Mi experiencia con arquitectos pro ha sido de excelencia, dominan todos los temas relacionados con la construcción, realizan planos estructurales, eléctricos, brindan confianza, y escuchan a sus clientes, generan ideas, demuestran preocupación activa, recomiendan mejorías, se adelantan a problemas emergentes, y conocen las leyes. Realmente he tenido una muy buena experiencia.
Son profesionales competentes e idóneo con su causa
Excelente trabajo, seriedad, puntualidad y compromiso. Felicitaciones
Les solicité regularización por ley del mono, realizando todos los trámites en forma expedita y obteniendo la recepción Municipal en los plazos qué correspondía. Muy conforme con su trabajo y asesoramiento.
Excelentes profesionales y consejeros que apoyan al cliente en todos los aspectos legales referentes a la regularización de las obras y/o construcciones.
Cumplen a cabalidad con los plazos y asesoría que ofrecen y mantienen constantemente informado de los procesos que va el tramite.
Muy recomendables !!
Es un trabajo profesional, saben de los temas relacionados a la tramitación municipal, conocimiento de ordenanzas municipales , de la ley general de urbanismo y construcción. y basto conocimiento de construcción.
Nosotros quedamos muy conforme con la gestión de regularizar en la parcela nuestra vivienda, gracias 👌😁