Ir al contenido principal
16 Años de Experiencia
16 Años de Experiencia
Inicio
Proyectos
PROYECTOS APROBADOS
Obras Nuevas Empresas
Obras Nuevas Viviendas
Permiso Ampliación Empresas
Permiso Ampliación Colegios
Permiso Ampliación Viviendas Económicas
Permiso Ampliación Viviendas Sociales
Permiso Ampliación Menor a 100 M2
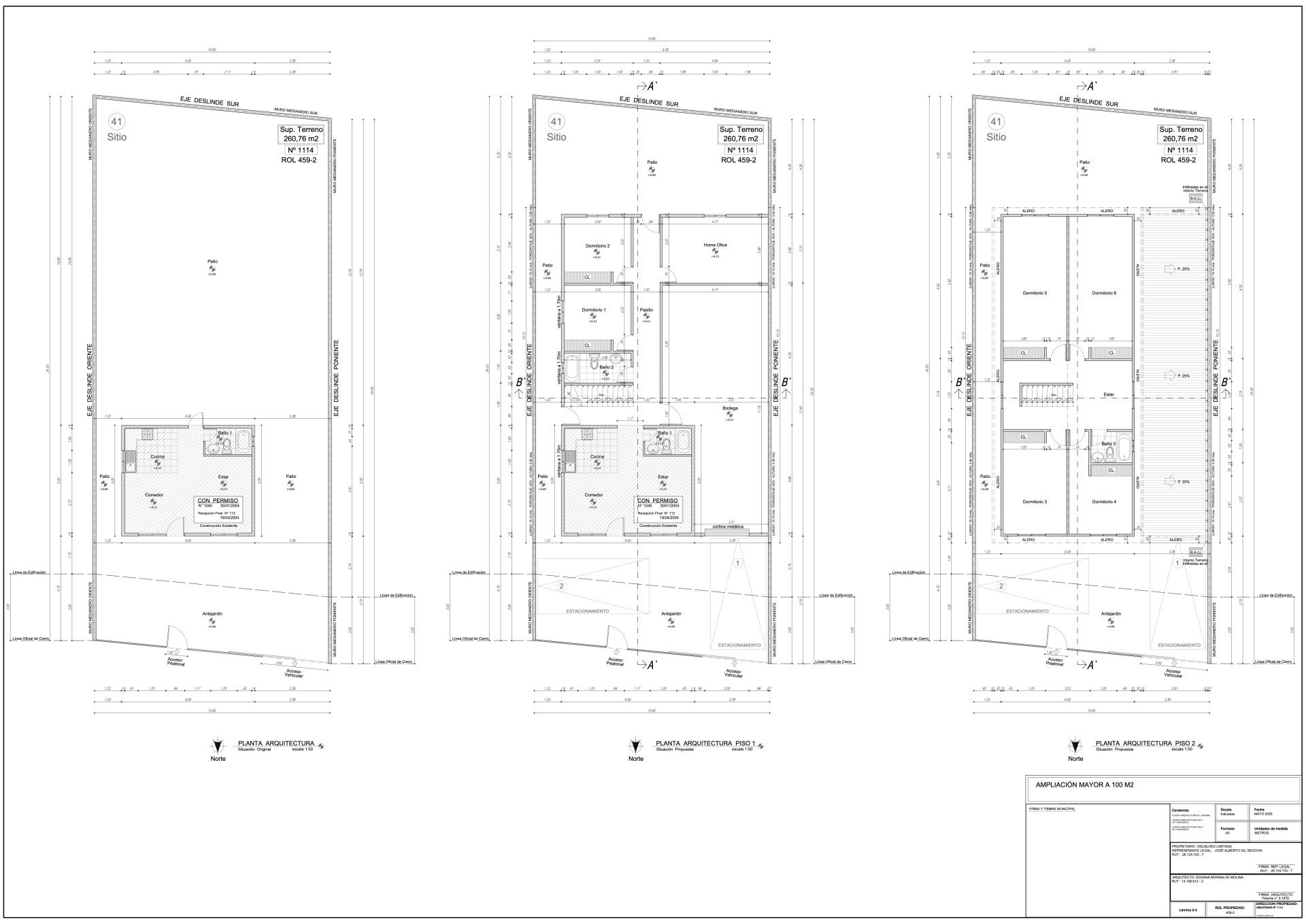
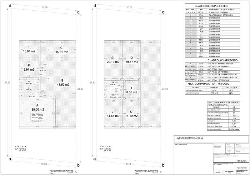
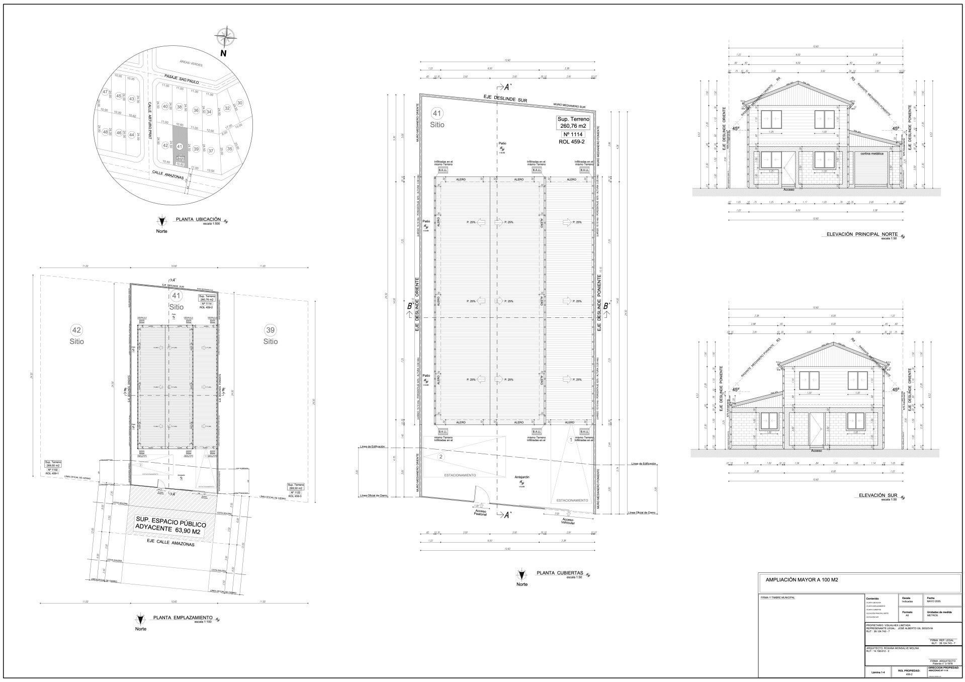
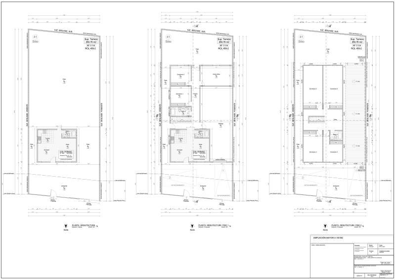
Permiso Ampliación Mayor a 100 M2
Regularización Ley 20.898 ´´Ley del Mono``
Parcelación Santo Domingo - Ley 20.898 - Obra Nueva
Modificación de Proyecto
Proyecto Por Habilitación Salud
Proyecto Subdivisión Predial
Permisos Aprobados
Recepciones Aprobadas
Videos
Proyectos 3D
Videos Reels
Videos 3D
Videos Dron
Contacto
Inicio
PERMISO AMPLIACIÓN MAYOR A 100 M2
2.
PERMISO OBRA MAYOR A 100 M2
Vivienda y Comercio
· Cerrillos
· 2026
Inicio
1.
PERMISO OBRA MAYOR A 100 M2
Vivienda Unifamiliar
· Cerrillos
· 2025
Inicio