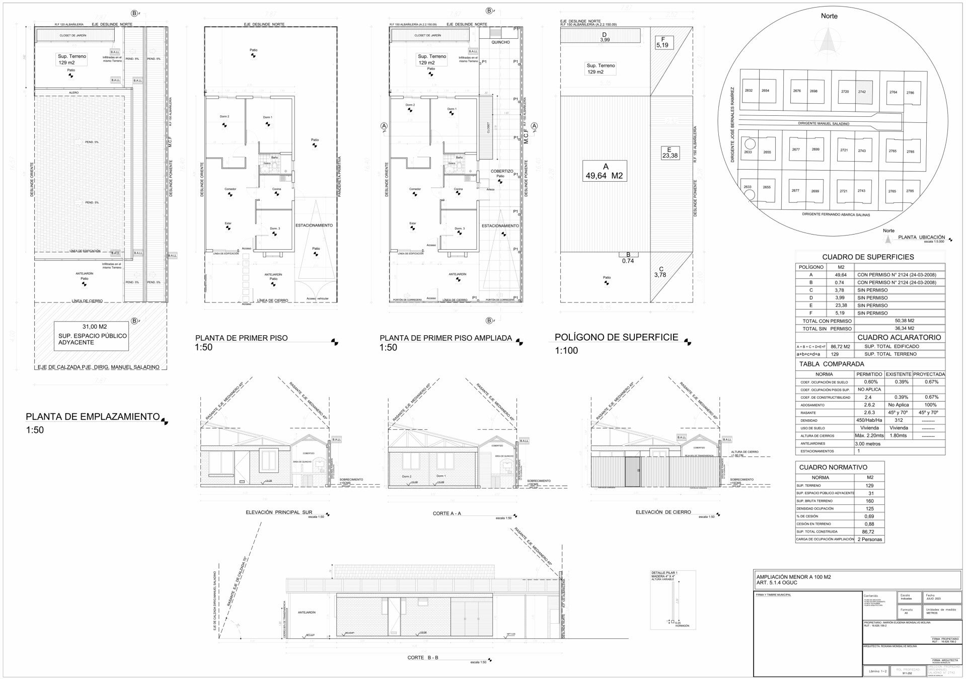
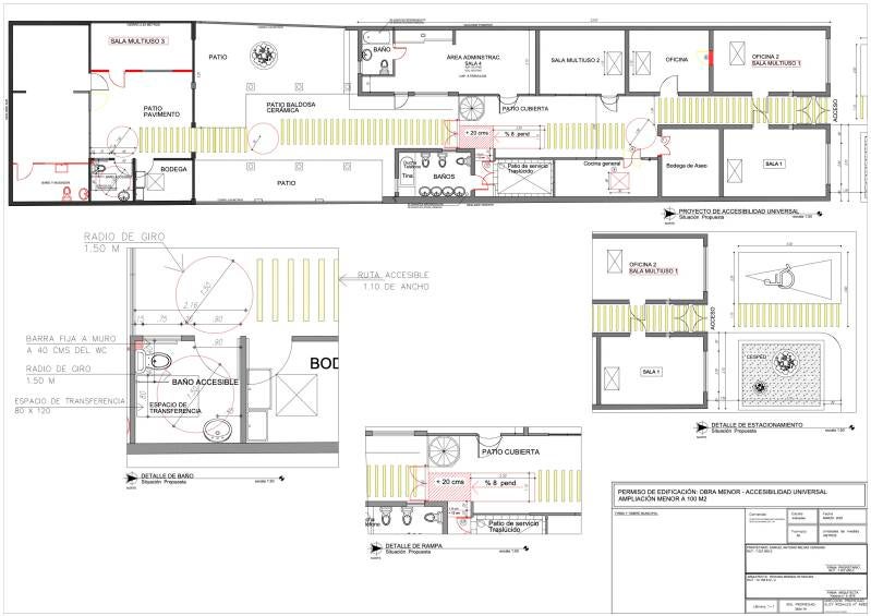
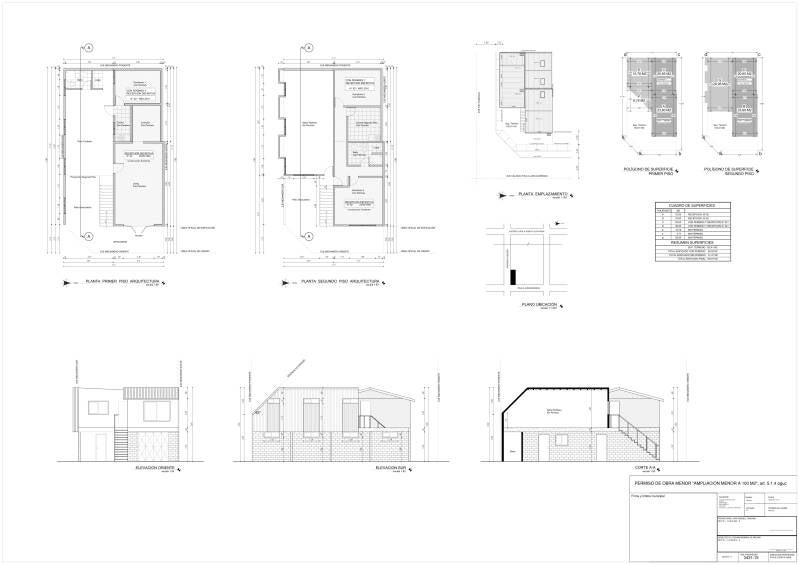
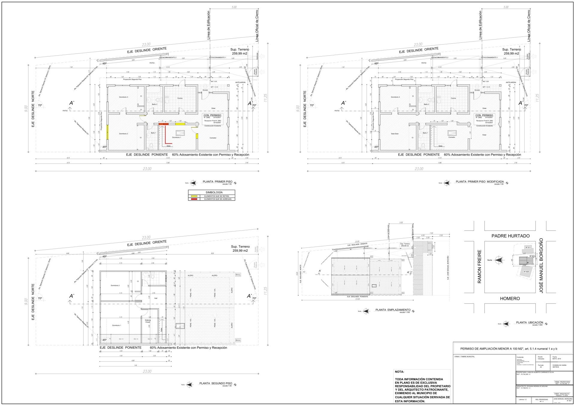
PERMISO AMPLIACIÓN MENOR A 100 M2


      Jardín Infantil Remolinos de Amor · Quinta Normal · 2025


      Iglesia Bautista Trinidad · Quilicura · 2025


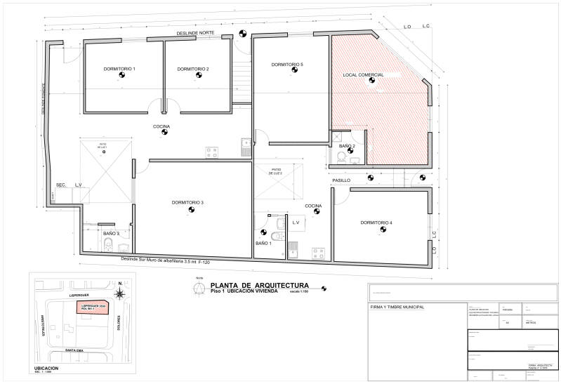
      Habilitación Local Comercial · Estación Central · 2024


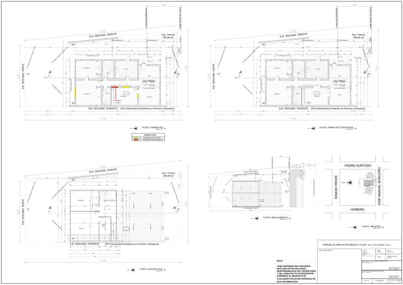
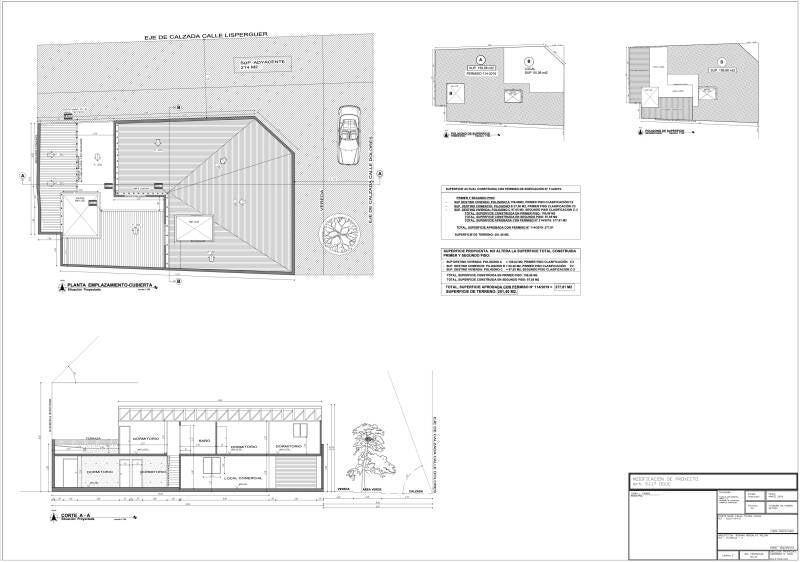
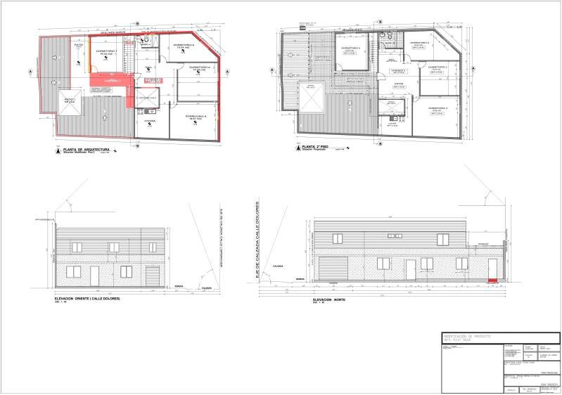
      Modificación de Proyecto Estación · Central · 2023


      Huechuraba · 2023


      Cerrillos · 2023


      Maipú · 2019


      Maipú · 2017


      Quilicura · 2017