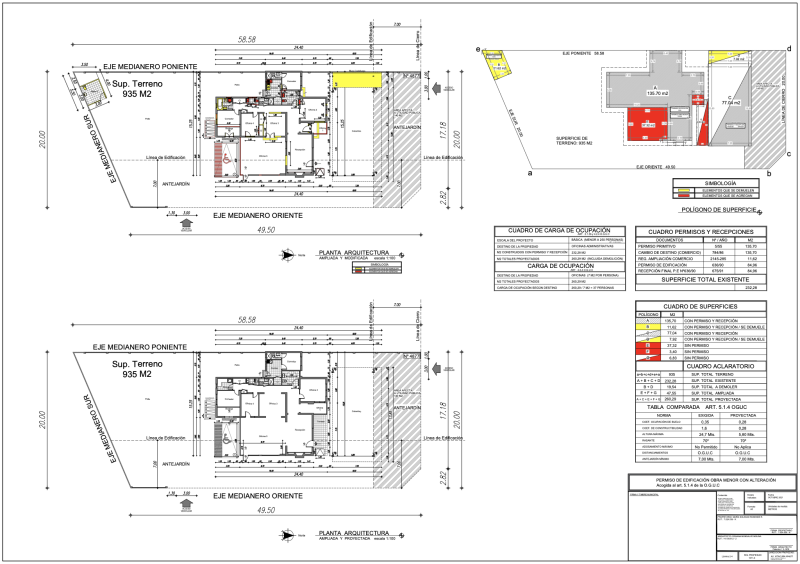
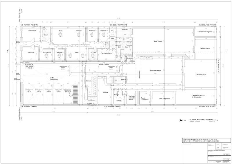
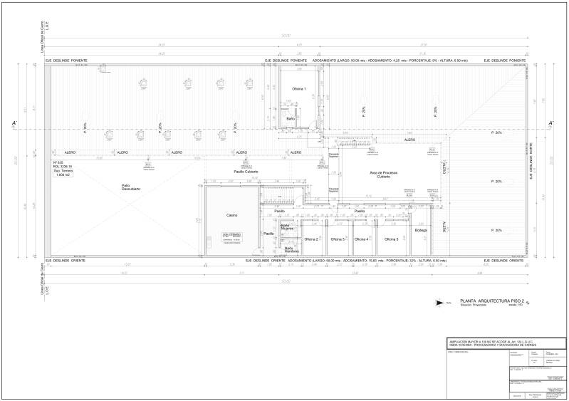
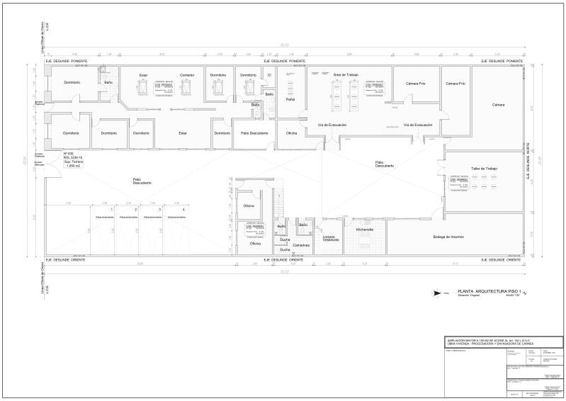
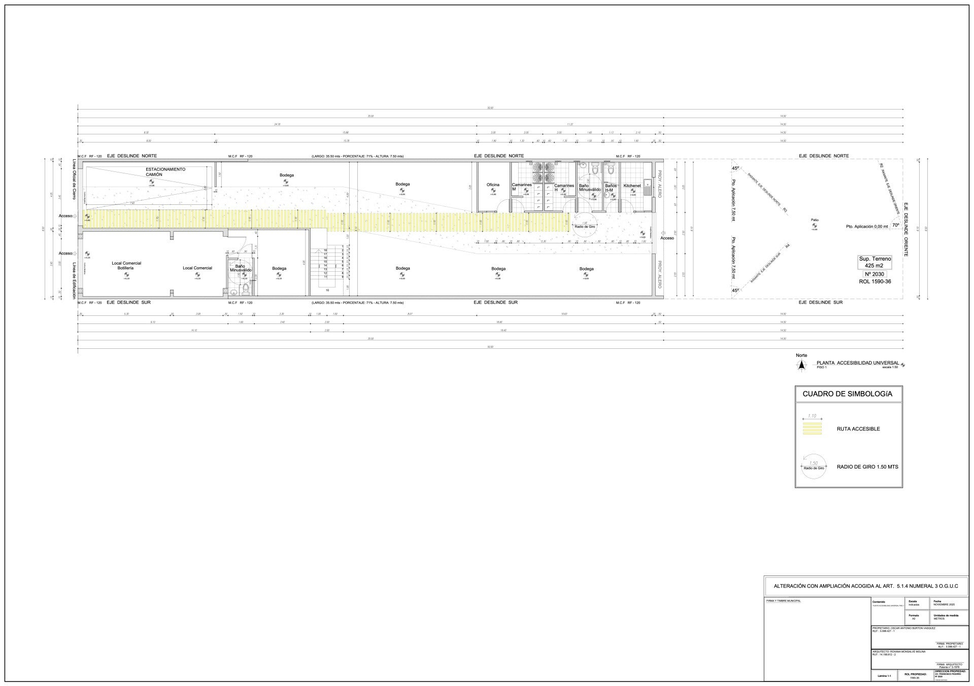
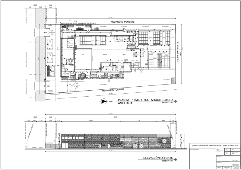
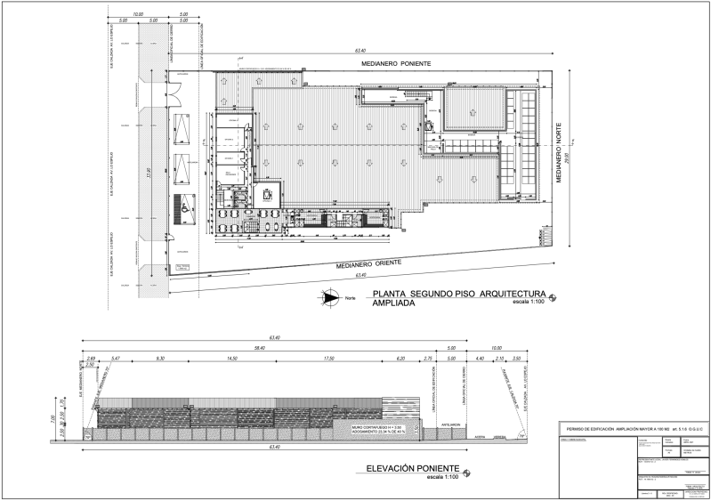
PERMISO AMPLIACIÓN EMPRESAS
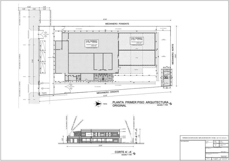
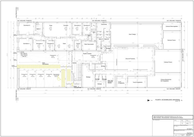
- 7. PERMISO AMPLIACIÓN - CONGELADORA Y ENVASADORA DE POLLOS
SAN JOAQUIN 2023

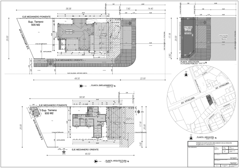
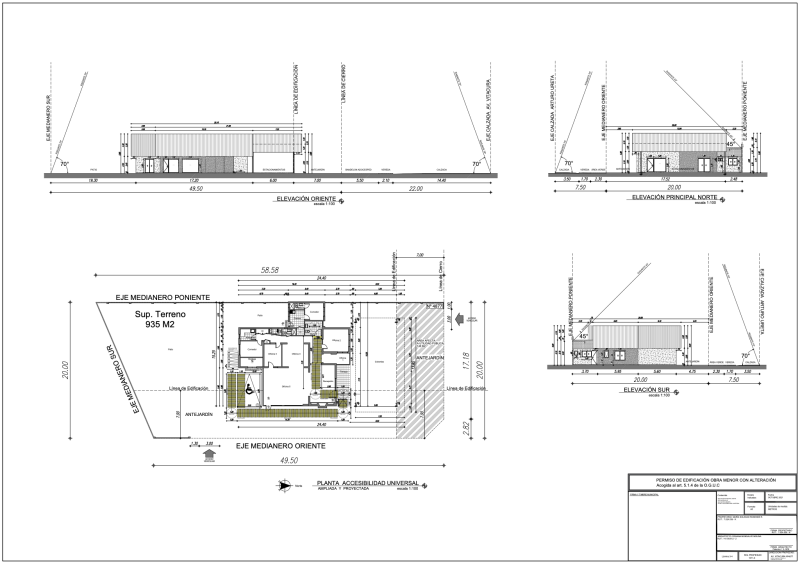
Vitacura 2023
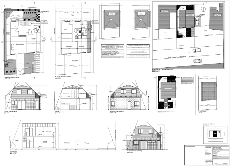
Lo Espejo · 2021
Recoleta · 2019
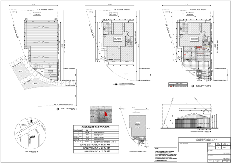
Estación Central · 2019
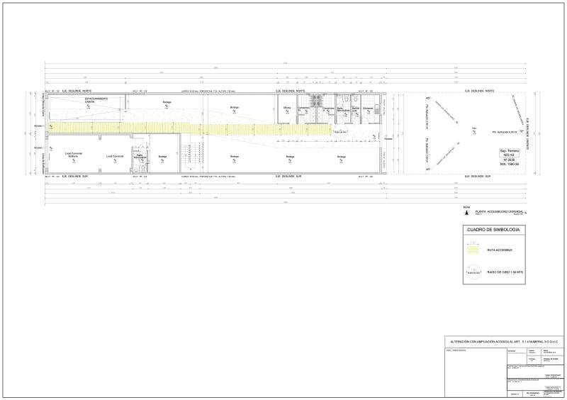
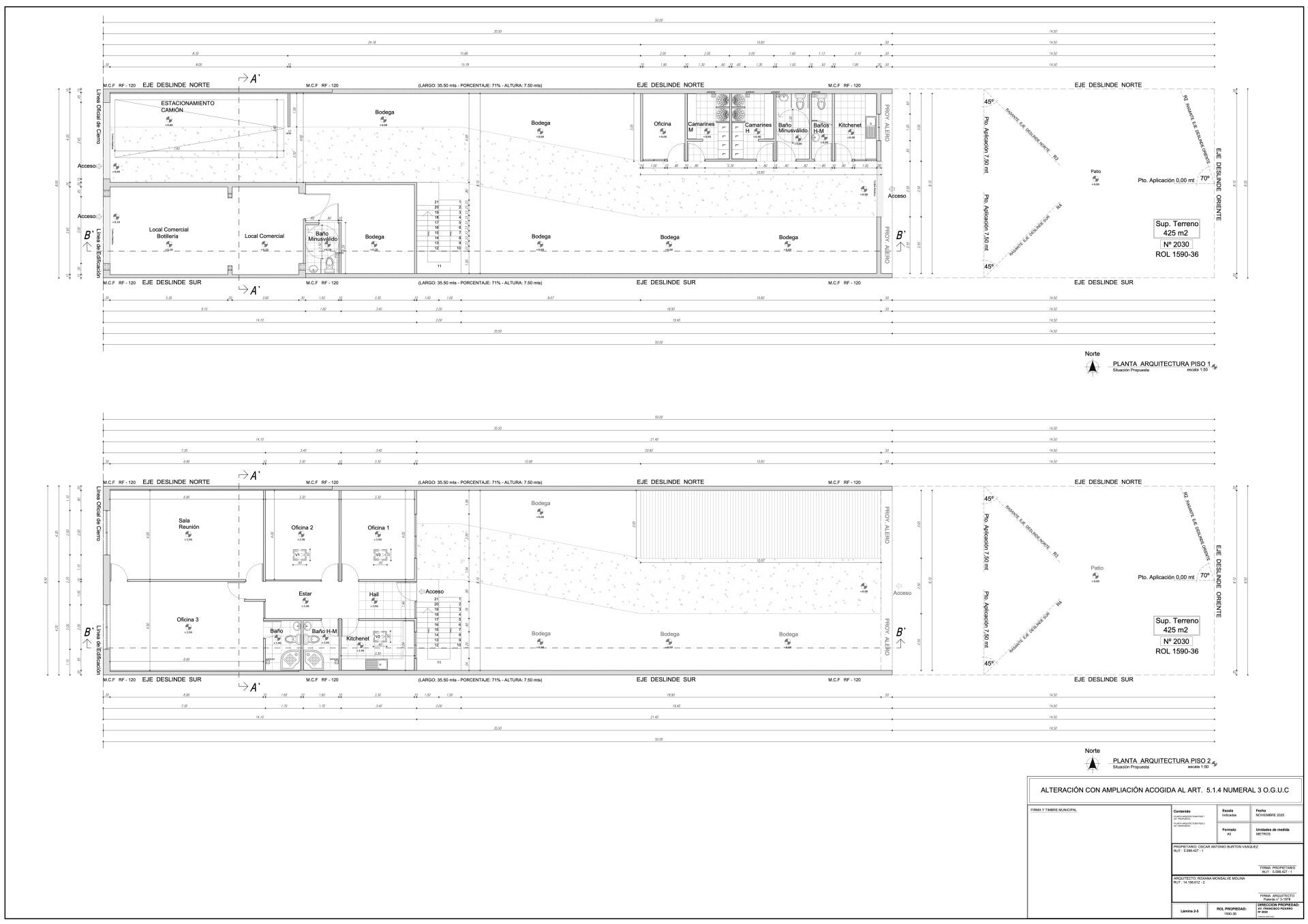
Maipú · 2017
Maipú · 2017
SAN JOAQUIN 2023
Vitacura 2023
Lo Espejo · 2021
Recoleta · 2019
Estación Central · 2019
Maipú · 2017
Maipú · 2017